Raj Capital Dahisar
Raj Capital Dahisar – Premium Commercial Spaces for the Modern Business
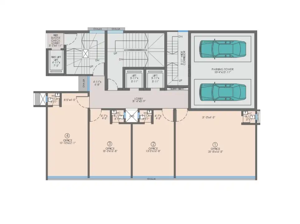
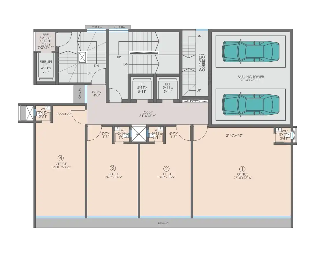
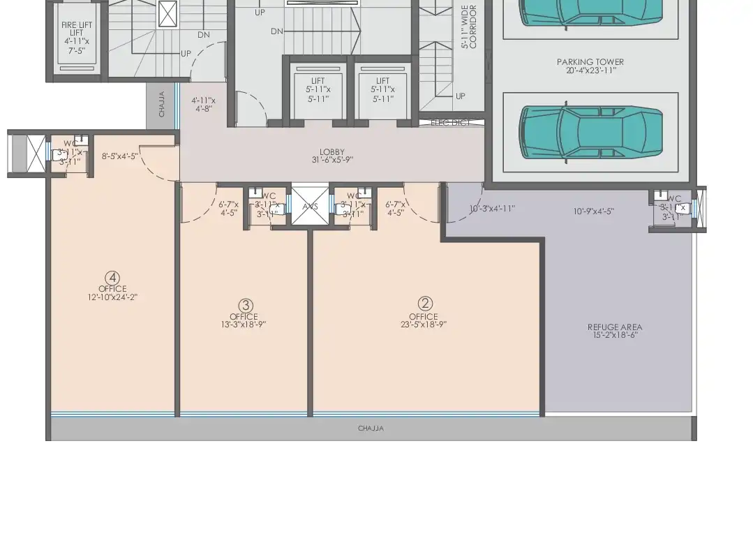
Raj Capital Dahisar stands as a hallmark of contemporary commercial development, combining cutting-edge architecture, strategic location, and well-planned office spaces with world-class amenities. It offers an inspiring work environment that reflects professionalism, sophistication, and modern efficiency.
From its grand designer entrance lobby to high-speed elevators that provide seamless vertical transit, every element is designed to elevate the business experience. Each office space is thoughtfully planned to maximize functionality, flexibility, and aesthetic appeal, creating a workspace that supports productivity and growth.
Positioned in a high-potential business zone, Raj Capital is the perfect address for forward-thinking enterprises seeking visibility, connectivity, and prestige.
Read More
